大型メゾネット住戸リノベーションの渋谷区L邸の工事は、上階・下階ともに本格的に進み始め、かなり大掛かりな工事となっています。今回は、スチールFB(フラットバー)を使った建具枠についてご紹介します。

上階は既にLGS(軽量鉄骨)の間仕切りが立てられてて、部屋の骨格が見えてきました。

LGSの間には場所によって壁下地のベニヤ板や、遮音の為の断熱材は入れられています。

白くて重たい長物が多数搬入されています。実はこちらは…、

スチールフラットバー(鉄板)の枠材なのです。白く塗装されているので、軽そうに見えますが、6ミリの厚みのある無垢材なので、かなり重たくしっかりしています。

この枠材を製作してくれたのは、有富家具の有富さん。
モックアップ用に作ってくれていたスチール枠材を、木製の枠下地材に取り付けてくれた様子です。溶接されたL字型のフィン部分で、木枠にスチール枠を固定できるように作られています。

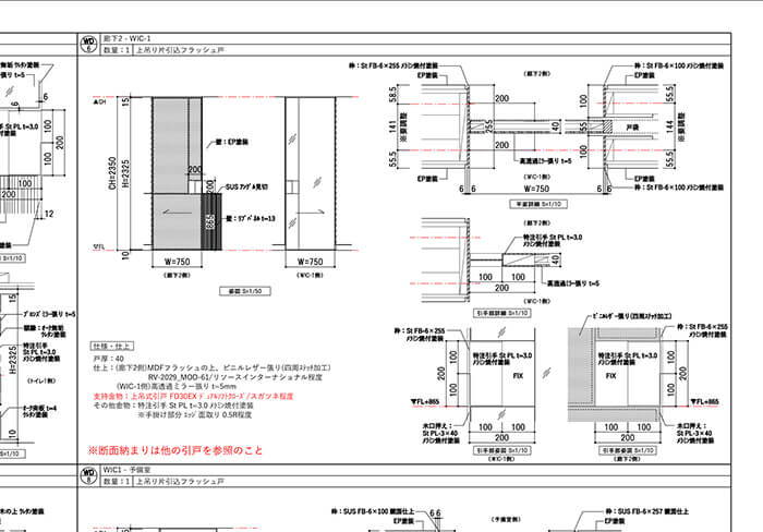
こちらの建具(扉のことです)と枠の図面の緑で囲まれた箇所、「St FB 6×117 メラミン焼付塗装 22-80B 五分艶」と記載されている部分はこの枠の仕様です。Stはスチール、FBはフラットバー、6×117はサイズ(ミリ表記)、22-80Bは色番号、5分艶はそのツヤの度合いとなっています。

建具図は全体としてはこのようなものとなっています。こちらは僕ら設計側が作った指示図で、部分的な詳細や仕上げ材、取っ手の作り方や枠の取り付け方が細かく指示されており、これを元に施工会社側が見積りをし、施工用の図面を作ってゆきます。

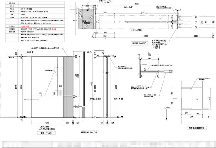
下請けとして入ってくれた有富家具が描いた建具の製作図がこちらです。先ほどとは別の建具の図面ですが、製作側は単に図面をトレースするだけでなく、実際に建具をどのように作り、どんな金物で吊り、どのように補強するかまで、この図面作成の過程で検討していくのです。
こちらは吊り金物で吊る「引き込み扉」の図面です。

こちらは引き込み扉の上枠の様子です。白いレールから吊り下げられている四角いプラスチックと金属でできたものが上部吊車(コマ)と呼ばれるものです。建具側にちょうどこのコマがはまるように欠きこみを作っておいてそこに嵌め込むのです。引き込み扉は2枚の壁の間に引き戸が引き込まれて見えなくなるので、柱の間にスペースがあり、そこの奥まで枠とレールが伸びているのです。

同じ枠の反対側見た様子です。コマ2つあることが判りますね。

基本的には枠は3方向に回りますが、傷がつきやすいので、取り付けが終わるとすぐにベニヤ板で養生されてしまいます。

建具と枠は、このフラットバーの枠だけでもかなり重たく、そこに更に建具の重量も掛かってくるので、枠を固定する枠下地もかなりしっかりとしたものになります。左右の枠だけではその重量はサポートできないので、上階のコンクリートスラブからアンカーバーで吊って固定しているのです。写真の木が横にわたっているのが枠下地で、何か所は細い銀色の棒で吊られているのがアンカーバーです。
今回のスチールフラットバーを使った枠ディテールは、実は設計監理を手伝ってもらっている設計事務所「ハクアーキテクツスタジオ」の後藤さんと関さんの事例を見学させてもらったことから始まりました。
ハクの後藤さんは、カガミ建築計画がまだ弱小だった頃のスタッフとして事務所を支えてくれたメンバーで、パートナーの関さんも学生時代からの知人です。カガミ建築計画の人手が足りないときには、これまでもたびたびお手伝いをお願いしてきました。
ハクが設計したお宅を見学させてもらった際、このフラットバー枠のディテールが非常にシャープで美しかったため、今回はそれを参考にさせてもらいました。
ハクさんも僕らのディテールを参考にしてくれているので、お互いに情報を交換しながら、設計力をさらに高めていければと思っています。