メゾネットリノベーションの世田谷区A邸では、キッチンと洗面と浴室の水回りを刷新したいとのご希望を当初から伺っています。それらのレイアウト案をどのように考えて、お客さまと打ち合わせを重ねる中で、最終的にどのような形に纏まっていったのかのプロセスをご紹介します。

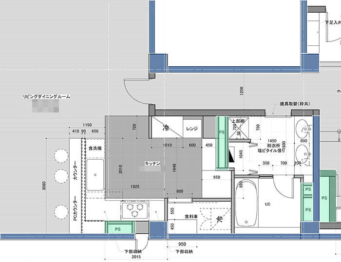
こちらが、お客さまから頂いた現在のキッチンと洗面と浴室のレイアウト図です。15年前に水回りをリフォームした際に工事会社との打合せに使っていた図面とのことです。当初は濃い灰色で塗られた壁が全てコンクリート造かと思いましたが、マンション竣工時の図面と現地の調査で、コンクリート壁は限られた範囲であることが判りました。青がこの時点で分っているコンクリート躯体で、緑がPS(パイプスペース)です。

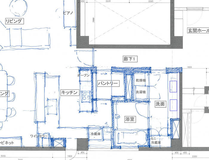
お客さまのAさまからのご要望は、具体的なことはほとんど伺っていない段階で、こちら設計側で勝手に考えてみた水回りレイアウト案です。キッチンは大きなL字型のカウンターで、背面にガスコンロとオーブンを、さらにその裏側に通り抜け型のパントリーを設けてみました。

カガミ建築計画では、最初の間取りや水回りレイアウト案は、所長の各務が手書きのスケッチで考えます。しばらくはこの図のように手書きスケッチをPDF化したものに色付きで考えを重ねた図で、お客さまとの打合せを続けます。

その間に、担当スタッフ(今回は副所長の竹田さんです)がパソコンで、寸法や機器のサイズも入れたCAD図面を作ってくれます。そのCAD図に、また各務がコメントを書き加えて案をブラッシュアップさせていきます。

幾つかのキッチンショールーム巡り(今回は、クチーナ、ジーマティック、ポリフォーム、アルクリネア、モルテーニ、リネアタラーラをご一緒しました)をしながら、お客さまのご意見を伺いつつ、レイアウトの考え方を発展させていきます。写真はリネアタラーラの用賀ショールームです。

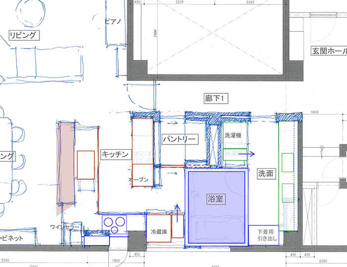
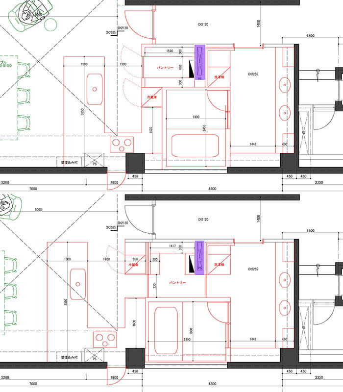
これらのパターンはキッチンは全てL字型で共通していますが、緑色の浴室の位置によって洗面カウンターやキッチン背部のパントリーのレイアウトが変わっています(お客さまにお見せした図面は白黒でしたが、ブログでは分かりやすいように色分けしてみました)。薄紫色に塗った個所がPS(パイプスペース)でこれがあることで水回りレイアウト案にかなりの制限が掛かってしまうのです…。

インテリアを勉強したことがある奥さまのAさまも色々と考えて下さり、こんなことができないかというアイデアを送ってくださいます。

ここまでは、Aさまのご要望を一旦こちらで受けて、次回の打ち合わせまでにレイアウト案を図面化してお見せするスタイルで進めてきましたが、水回りのレイアウトパターンがあまりに増えて、中々収束しない可能性が見えてきたので、Aさまに事務所に来て頂いて、竹田さんがその場で図面化してみることになりました。寸法的な問題や使い勝手なども一緒に相談しながら、案を絞り込んで設計を進めることにしました。

熱心にスクリーンを見ながら、リクエストをしてくださるAさまと、それをスピーディーに図面化してくれる竹田さんの様子です。

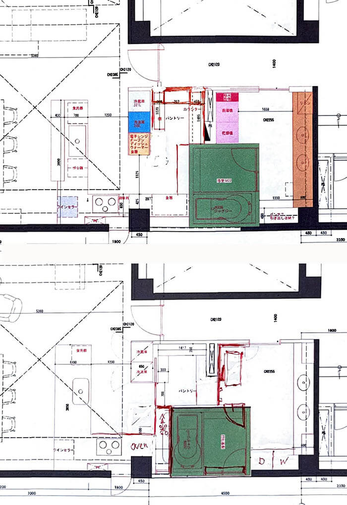
ここまでの作業で大きくパターンが4つに収れんしてきそうだったので、各案を比較検討しやすいように色分けしたパターン図を作ってみたのがこちらです。

実は、当初の予定では、奥さまも設計側の一員として参加してもらいながら、スケジュールに余裕を持たせて、ご満足がいけるプランに辿り着くまではじっくり進めようとのお話でした。ところが、海外留学していたお子さまが、トランプ政権の煽りで日本に戻られることになり、スケジュールを早めて欲しいとのご依頼がありました。
最終決定をしてしまう前に、追加であと2案考えて欲しいとのお話で作ったのがこちらの2案です。やはりパントリーを通り抜けて、キッチンとランドリーコーナーがある洗面が繋がるのは魅力的ですね。

ここまで作った全ての案を机の上に並べてみた様子です。
今回はキッチンだけでなく、浴室のサイズ、洗面とランドリーにもこだわりのあるAさまでしたので、とにかく各方面からのバランスと陣取り合戦と収納計画の絡みでレイアウト決定に時間が掛かりました。

途中では、オーダーキッチンでほぼ内定(笑)がでた、リネアタラーラの牧野さん、そして整理収納アドバイザーとしていつもお世話になっているタイディーアップの片岡さんにもご自宅に来てもらい、キッチンの収納計画のアドバイスも貰っています。
竹田さんは天井に空けた穴から天井裏を覗き込んでいますが、ビルトイン冷蔵庫をガゲナウにした場合、天井高さの問題があるので、どこまで天井高さを確保できるかを確認してくれているのです。

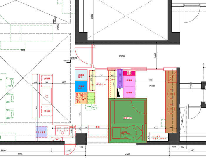
各案の良い点と悪い点を整理しつつ、関係各社にもアドバイスをもらった上で、最終的にほぼこれが良いだろうと纏まった案がこちらです。
あれっ…?

一番最初に考えた「初期案」と「最終案」のレイアウトがほぼ同じに戻る形となったのです!
キッチンのガスコンロとビルトイン機器の位置が変わったこと、途中で行った部分解体調査でPSが移動できたりした部分が少し違いますが、ほとんど同じレイアウトに戻ったので、皆笑ってしまいました!
マイナーな修正案も含めると24~5案ほど作ったのですが、最後はほぼ振り出しに戻ったのです。でも、「ここまで色々なパターンを作ってみたうえで、この案になったので、本当の納得感があります!」とAさまが仰ってくださったことが、とても嬉しいのです。

打ち合わせの途中段階でショールーム周りをした、ビルトイン冷蔵庫と冷凍庫のガゲナウ、自動センサー水栓のデルタ(DELTA)、ガス機器のリンナイ、浴槽のジャクソン、洗面ボウルのセラや水栓のグローエなど設備機器、クォーツサイトのタージマハール(コセンティーノ)等の素材を含めて、Aさまが気に入ったものを全て取り込んで、正式に依頼することが決まったリネアタラーラと一緒に詳細を決めてゆくことになります。