以前より良く使わせてもらっているキッチンブランドのクチーナから、代官山ショールームの5階でこれまで社長室とオフィスとして使っていた場所が空くことになったので、建築家が好むデザインのキッチンを一緒に考えて、その実例を展示するショールームを提案して貰えないかとのワクワクするお話を頂きました!

クチーナの陣内社長、商品企画部開発室の鈴木さんと、目黒のカッテランシ・イタリアショールームでそのお声掛けを頂いた際の写真です。実は陣内社長とはコロナ以前からお付き合いがあり、代官山のクチーナショールームをどう活かすべきかを勝手にアドバイスさせて頂いたことがありました。その時のことを覚えてくれていたそうで、今回お声掛け下さったとのことでした。カガミ建築計画は、通常はB to C(Business to Consumer、会社が一般消費者に設計サービスを提供するビジネスモデル)が基本であり、B to B(Business to Business、会社が別の企業に対して設計サービスを提供するビジネスモデル)はお断りしているのですが、永らくお付き合いがあるクチーナの陣内社長からの直々のご相談なので、前向きに検討することになりました。そして、初めてお話を伺った瞬間、建築家向けのセミオーダースタイルのキッチンであるなら、
・建築空間の中に隠れるキッチンになるだろう
・扉の面材は壁や建具にも使える材料にすべきだろう
・それをショールームとして実現するなら、CGを使って着せ替え式にしてみせるべきだろう
と考えて、カガミ建築計画とザ・ライブラリーのダブルネームで設計させて貰えないかと提案いたしました。ザ・ライブラリーのパートナーのTAGKEN田口さんは、カフェ・ベローチェやカフェ・ド・クリエ、珈琲館などのデザインコンサルのお仕事もしており、当然ながらCGの技術も素晴らしいので、ザ・ライブラリーを絡めるべきだと思った次第です。

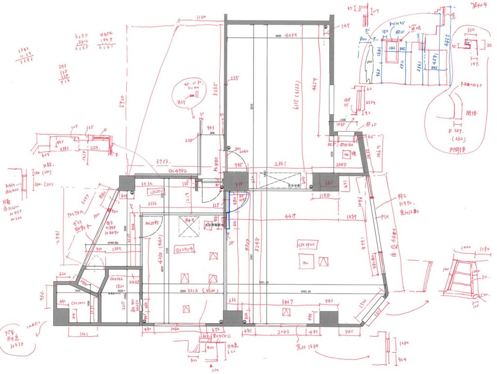
田口さんに相談したところ、是非ザ・ライブラリーも一緒にやりましょうとのことになって、鈴木さんにお願いして現地の調査に入らせてもらいました。こちらのボールト天井(円形天井)の空間がかつての社長室とのことでした。ちょっと入り組んだニッチの空間や窓枠の位置まで、田口さんと弊社担当の竹田さんで実測をして貰っています。

自社ビルとして建てた建物だったので、竣工当時の青焼き図面集があるとのこと、当該箇所の断面図が見つかりました。円形の形はレーザー測量器では正確に測ることができないので、このような図面があったことでとても助かりました。
ボールト状の天井の奥に梁型があるようですが、うまくその梁型を良ければ、空間の奥行きを深めることができそうです。

隣の事務室は、まだお引っ越し準備中でスタッフの方がお仕事をしていたので、大枠での部屋の寸法を取るだけとしました。

4階には3つの部屋があり、一番奥が打合せ室となっていました。机の手前に置いてあるのが建物竣工時の青焼き図面集です。

平面的にもちょっと凝った形の間取りでしたが、青焼き図に平面図もあったので…、

実測したこちらのデータと青焼き図面を照らし合わせれば、ほぼ正確な図面を起こすことができそうです。

実測図を作る作業と同時に、「建築家好みのキッチン」のコンセプトを田口さんと竹田さんと一緒に練り始めました。僕も田口さんも広義の意味では「建築家」ではありますが、いわゆる作品としての住宅を作る建築家(住宅作家)ではないと自認しています。
この違いを説明するのはなかなか難しいのですが、ザックリ比較すると以下の様なものだと思っています。
| 観点 | 住宅作家(予備軍も含む) | 顧客寄り建築家 |
|---|
| 目的 | 建築家の思想を表現 | 施主のライフスタイルを具現化 |
| アプローチ | コンセプト先行 | 顧客との協働 |
| デザイン性 | 独創的・実験的 | 洗練・ラグジュアリー |
| 生活利便性 | 空間性優先で二の次になることも | 実用性と快適性を重視 |
| 掲載媒体 | 建築専門誌(「住宅特集」や「住宅建築」など) | インテリア誌(「モダンリビング」や「I’m home.」など) |
クチーナが考えている「建築家」はおそらく、若手の建築家で、将来の大きな夢としては「住宅作家」ではありますが、それだけを追いかけていると、食うに困る状況に追い込まれる可能性もあるので(笑)、モダンリビング等の富裕層向けインテリア雑誌にも掲載されるような住宅もちょっとは設計してみたいというようなイメージでしょうか…。
実は、僕、各務も田口さんもかつては将にそのような迷える若手建築家(笑)だったので、気持ちは良く分かるのです!「住宅作家予備軍の建築家」がキッチンに対して考えることは、
・使っていない際にはキッチンに見えない、建築の中に隠れたキッチンにしたい
・大理石や派手な突板のような目立った素材は使ってほしくない(建築空間に対しての異物になってしまうので)
・「建築」に対して費用を掛けたいので、オーダーキッチンのような高級なものにお金を掛けたくない
・大工造作で作ったキッチンよりも使い勝手が良くて、製品として安心感があるキッチンにしたい(できれば、クレームが直接建築家に来ないキッチンにしたい)
・建築家が考えるオリジナルな素材で扉を作ることができればベスト!
といったところでしょうか。それらのポイントを踏まえて、「家具・壁・建築と一体となるキッチン」というコンセプトを作り、建築家が使いたい素材をキッチンパネルに組み込むことができるシステムを提案しました。

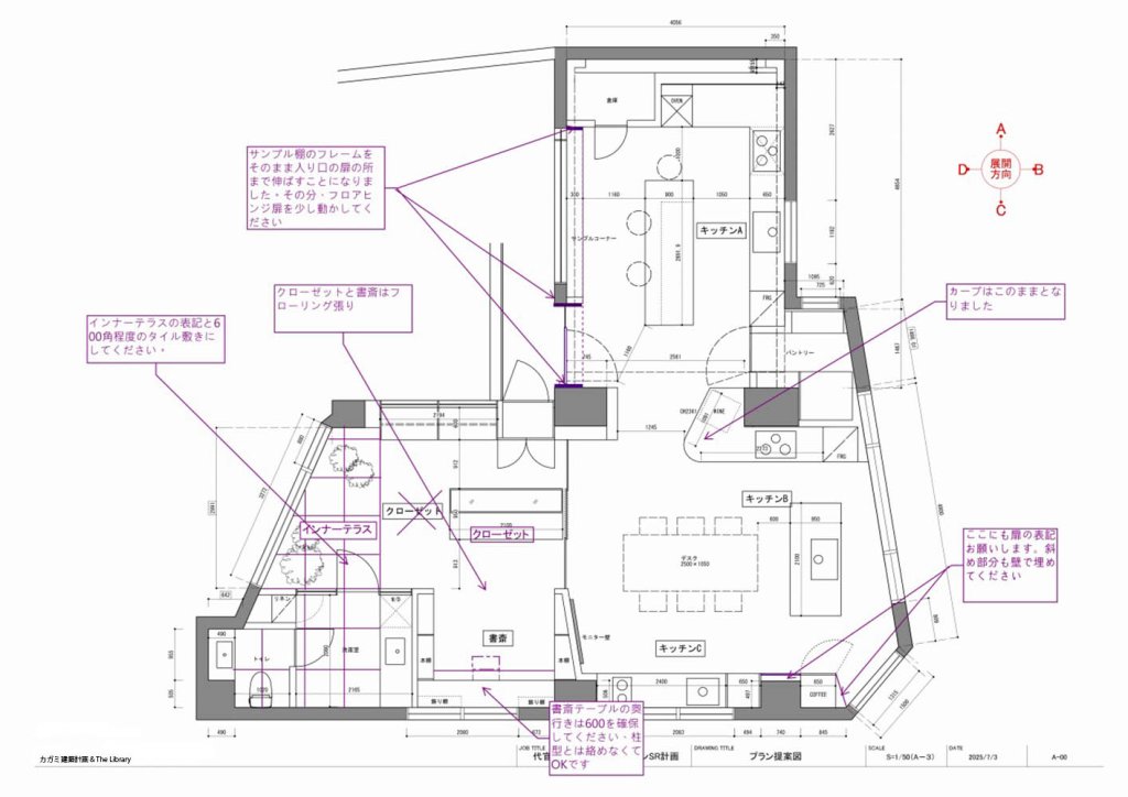
まだ正確な図面ではありませんが、壁付けキッチンとペニンシュラ型キッチンの展示を各1つずつとクチーナで作っている洗面カウンターとクローゼットシステム(あるいは書斎)とお風呂を組み合わせた間取りの初期スケッチ案がこちらです。

ボールト天井の奥行きのどこまでを使えるかが唯一の懸念事項として残っていましたが、クチーナの鈴木さんが写真に赤字で記してくださった箇所を開口して、ボールトの奥を撮影した写真を送ってくださったので、この個所についてもある程度目安を立てることができました。

ボールト部分も含めてより正確な図面ができたので、田口さんと竹田さんと何度もやり取りをしながら、展示プランをブラッシュアップさせてゆく作業が続きます。キッチンについては、壁付けの大型キッチンとアイランド付きのキッチン、そしてミニキッチンの3つを作ることは概ね決まり、残りの空間にクローゼットなのか書斎なのか、お風呂をどうするのかがが決まっていない状態まできました。

こちらの図面はボールト天井の部屋の展開図案です。キッチンの扉とビルトイン冷蔵庫の扉、パントリーの扉、壁を全てツライチとして、同じ素材、同じディテールで揃えるアイデアです。
一度途中経過を鈴木さんには見て貰って、意見を貰っていますが、最終的な判断は陣内社長にプレゼン時に確認しようとのことになり、とりあえずこのプランでできるところまでCGを立ち上げることになりました。

CGは2種類で、こちらは着せ替えのアイデアです。右上のアイコンを押すと、扉の面材(まだ全てダミーですが)が切り替わる仕組みになっています(こちらのブログでは全てを並列に並べた画像です)。

ボールト天井の一番メインのキッチンCGがこちらです。アイランドカウンターがありますが、ここには機能を持たせず扉の着せ替えサンプルを並べたり、建築家とお客さまが打合せができるカウンターとなっています。L字型のキッチン部が着せ替え可能なイメージで、壁やパントリー収納の扉もキッチンの扉面材と同じ素材、同じディテールで作れるように考えています。

ちょっとユニークなRカウンターのキッチン側から、先ほどの壁付けキッチンを見返したアングルのCGです。

キッチンを建築に隠す為に、キッチン扉は着せ替え式のようにフレームの中に、ある一定の厚み以内であれば、素材を張ることができるイメージで考えているので、色々な素材候補を並べて、

壁にも建具にも、造作家具にも使える面材として提案させて頂きました。

ザ・ライブラリーの360VRCGは、CGのビューポイントに合わせて現地に立って、タブレットPCを持ってもらうと、自分が体を回転するのに従ってVRCGも回転してくれて、まだ全くリノベーション工事をしていない段階でビフォーアフターを仮想体験することができるので、それを陣内社長に体験してもらいました。

その他のアングルのCGはこちらです。本当は個々から、更にキッチンを指定して、素材を選ぶと、扉だけが着せ替え式になるように作ってゆく予定でなのです。
陣内社長と鈴木さんからはとても面白いし、建築家向けのキッチンのコンセプトと着せ替え式のアイデア、そしてVRCGのマッチングが素晴らしいと褒めて頂きました。フレームの中に素材を落とし込むアイデアは、実現化するためにはそれなりの試作が必要になるのではとの懸念点も指摘してもらいました。
今回の計画は、クチーナの新商品開発に向けたデザインアドバイスという立ち位置からスタートし、実際の空間を舞台にした「架空の実例(まさにヴァーチャルリアリティ(VR)!)」としてCGを使いながら検討を重ねてきました。「建築に隠れるキッチン」「着せ替え式の面材システム」といったアイデアは、建築家にとっても建築的な空間を愛するお客さまにとっても新しい可能性を開くものとなりそうです。
処々の事情があって、具体的なプロジェクトとして実現するところまでは至りませんでしたが、今回のプロセスを通して得られた知見やCGでの検証は、必ずどこかで活きてくるはずです。
いつかこのアイデアが実際の空間で形となり、多くの建築家やお客さまに体験していただける日が来ることを楽しみにしています。